Huis
€ 455.000

Tamboerijnstraat 6, 8530 Harelbeke
    • delen

Omschrijving Ref.: 7603657

Energiezuinige halfopen nieuwbouwwoning met garage en tuin


Ontdek deze prachtige, witgekaleide halfopen nieuwbouwwoning in het charmante Harelbeke, op enkele stappen van de Gavers.
Met een bewoonbare oppervlakte van maar liefst 206 m² op een perceel van 300 m² biedt deze woning een ideale combinatie van ruimte, comfort en energiezuinig wonen.

Gelijkvloers met een verzorgde inkomhal en gastentoilet.
De lichtrijke woon- en leefruimte sluit naadloos aan op de volledig ingerichte open keuken.
Vanuit de keuken heb je directe toegang tot de gezellige tuin.

Verder beschikt het gelijkvloers over een inpandige garage met aansluitende wasplaats, die eveneens toegang biedt tot de tuin, en een extra praktische berging.

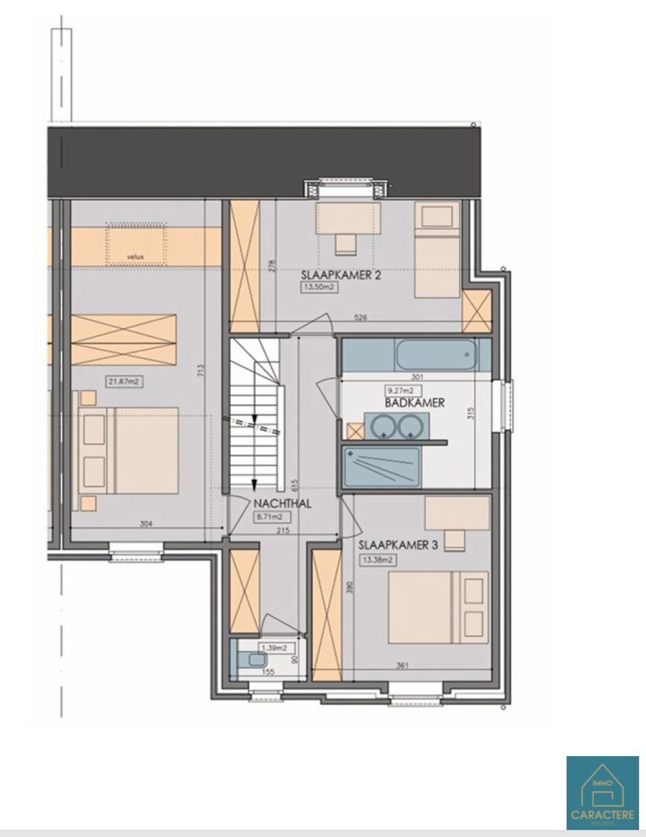
Op de eerste verdieping bevinden zich drie volwaardige slaapkamers.
De master bedroom is uitgerust met een handige dressing en de stijlvolle badkamer is voorzien van zowel douche als bad.
Daarnaast is er een afzonderlijk toilet.

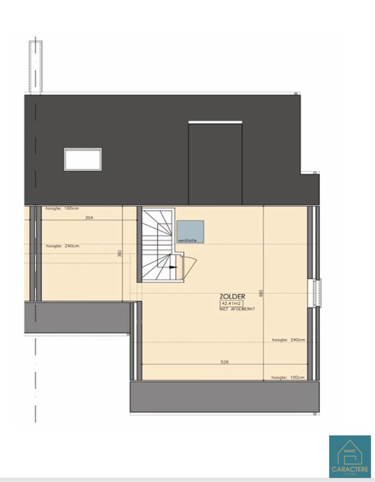
De tweede verdieping omvat een volledig geïsoleerde zolder met vaste trap, die tal van mogelijkheden biedt: een extra slaapkamer, hobbyruimte of thuiskantoor.

Deze woning is bovendien bijzonder energiezuinig dankzij de aanwezigheid van een warmtepomp, vloerverwarming en zonnepanelen.
Met een E-peil van maximaal 20, geniet je bovendien van een vermindering van 50% op de onroerende voorheffing gedurende de eerste vijf jaar.
Kortom, een toekomstgerichte woning waar comfort, ruimte en energiezuinigheid centraal staan.

*Prijs inclusief btw en registratierechten: €543.440
*Prijs exclusief notariskosten - aansluitingskosten - dossierkosten - landmeter.

Interesse?
Contacteer mij via 0465 03 30 54 of info@immocaractere.be


Uw contact

Vragen over deze eigendom ref: 7603657
contact

Details van het pand

Financieel

Prijs
€ 455.000,00
Beschikbaarheid
Af te spreken met eigenaar

Ligging

Buurt
Residentiële wijk

Gebouw

Bewoonbare oppervlakte
206,00 m²
Aantal gevels
3
Bouwjaar
2024
Staat
Nieuw
Aantal verdiepingen
2
Oppervlakte hoofdgebouw
205 m²

Terrein

Grondoppervlakte
300,00 m²
Breedte aan straatkant
12,00 m
Tuin
Ja

Parkeermogelijkheden

Garage
1
Parkings buiten
Ja
Parkings binnen
1

Indeling

Keuken
Ja, geïnstalleerd
Slaapkamer 1
21,67 m²
Slaapkamer 2
13,50 m²
Slaapkamer 3
13,38 m²
Slaapkamer 4
34,00 m²
Badkamer type
Douche en ligbad
Douchekamers
1
Toiletten
2
Wasplaats
Ja
Geventileerde ruimte
Ja
Zolder
Ja

Comfort

Handicapvriendelijk
Nee
Lift
Nee
Rolluiken
Ja
Zwembad
Nee

Energie

Dubbele beglazing
Ja
Elektriciteitskeuring
Ja, conform
Type verwarming
Warmtepomp
Verwarming
Vloerverwarming gedeeltelijk

Technieken

Elektriciteit
Ja
Kabeltelevisie
Ja
Riolering
Ja
Water
Ja

Stedenbouw

Bestemming
Woongebied
Bouwvergunning
Ja
Verkavelingsvergunning
Ja
Voorkooprecht
Nee
Dagvaarding
Nee - geen rechterlijke herstelmaatregel of bestuurlijke maatregel opgelegd
O-peil
Niet gelegen in een overstromingsgevoelig gebied
G-score
A
P-score
A
Watergevoelig openruimtegebied
Nee
Vonnissen
Nee

Meer info over deze eigendom

Bedankt voor je bericht, we contacteren je zo spoedig mogelijk.
Er was een probleem bij het versturen van het formulier, gelieve opnieuw te proberen.
(*) Gelieve de verplichte velden in te vullen.