Appartement
€ 299.000

Oude Pastoriestraat 3, 8540 Deerlijk
    • delen

Omschrijving Ref.: 7589062

Hoogwaardig afgewerkt appartement met twee terrassen


Een stijlvol en kleinschalig nieuwbouwproject bestaande uit 20 appartementen.
Dankzij de rustige én centrale ligging woon je hier in het groen, terwijl alle voorzieningen binnen handbereik zijn.
Dit afgewerkt en instapklaar appartement beschikt over twee ruime terrassen.

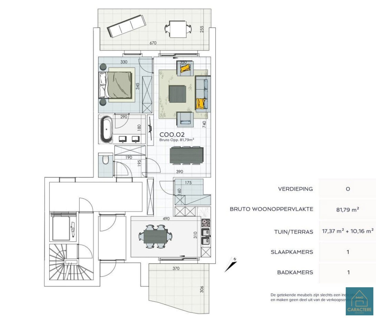
Indeling:
- Inkomhal met gastentoilet
- Zonnige leefruimte met grote raampartijen en een lichtrijke living met toegang tot het zuidgericht terras.
- Aansluitend: berging en volledig uitgeruste keuken met een schuifraam naar het tweede terras.
- Ruime slaapkamer
- Geriefelijke badkamer met dubbele lavabo en bad

Troeven:
- Vloerverwarming
- Zonnepanelen
- E-peil 20
- 6% btw mogelijk, onder voorwaarden (ook voor investeerders)
- Dankzij het gunstige E-peil geniet je gedurende 5 jaar van 50% korting op de onroerende voorheffing.
- Informeer naar onze huurgarantieformule van 6 maanden, zo start jouw investering met een zekerheid!

Mogelijkheid tot aankoop van een ondergrondse garagebox.

Prijs inclusief 6% btw en registratierechten: €318.182.
*Prijs exclusief notariskosten - aansluitingskosten - dossierkosten - landmeter.

Wordt dit jouw droomstekje?
Contacteer me: 0465.03.30.54 of info@immocaractere.be


Uw contact

Vragen over deze eigendom ref: 7589062
contact

Details van het pand

Financieel

Prijs
€ 299.000,00
Beschikbaarheid
Af te spreken met eigenaar

Ligging

Buurt
Residentiële wijk

Gebouw

Bewoonbare oppervlakte
82,00 m²
Staat
Nieuw
Aantal verdiepingen
3
Oppervlakte hoofdgebouw
82 m²

Terrein

Oriëntatie terras 1
Zuid

Parkeermogelijkheden

Garage
Ja

Indeling

Keuken
Ja, volledig geïnstalleerd
Badkamer type
Douche in bad
Douchekamers
1
Toiletten
1
Terras
28,00 m²
Wasplaats
Ja

Comfort

Handicapvriendelijk
Ja
Videofoon
Ja
Lift
Ja
Zwembad
Nee

Energie

EPC
Dubbele beglazing
Ja
Elektriciteitskeuring
Ja, conform
Type verwarming
Warmtepomp
Verwarming
Vloerverwarming gedeeltelijk

Technieken

Elektriciteit
Ja
Telefoonbekabeling
Ja
Riolering
Ja
Water
Ja

Stedenbouw

Bestemming
Niet meegedeeld
Bouwvergunning
Ja
Verkavelingsvergunning
Ja
Voorkooprecht
Nee
Dagvaarding
Nee
O-peil
Niet gelegen in een overstromingsgevoelig gebied
G-score
A
P-score
A
Watergevoelig openruimtegebied
Nee
Vonnissen
Nee

Meer info over deze eigendom

Bedankt voor je bericht, we contacteren je zo spoedig mogelijk.
Er was een probleem bij het versturen van het formulier, gelieve opnieuw te proberen.
(*) Gelieve de verplichte velden in te vullen.