Huis
€ 416.000

Tamboerijnstraat 35, 8530 Harelbeke
    • delen

Omschrijving Ref.: 7552905

Energiezuinige woning met 3 tot 5 slaapkamers, tuin & garage


Deze witgekaleide pastorijwoning ligt in het gegeerde woonproject Bistierland te Harelbeke.
Rustig, kindvriendelijk en centraal, nabij De Gavers, het centrum en de E17 (mobiscore 8,3).

Gelijkvloers:

Via de inkomhal met gastentoilet komt u binnen in een ruime en lichtrijke leefruimte.
De open keuken sluit hier naadloos op aan en kijkt uit op de aangename tuin.
Vanuit de keuken is er toegang tot een praktische berging en een inpandige garage met wasplaats, die rechtstreeks uitgeeft op de tuin.

Verdieping:

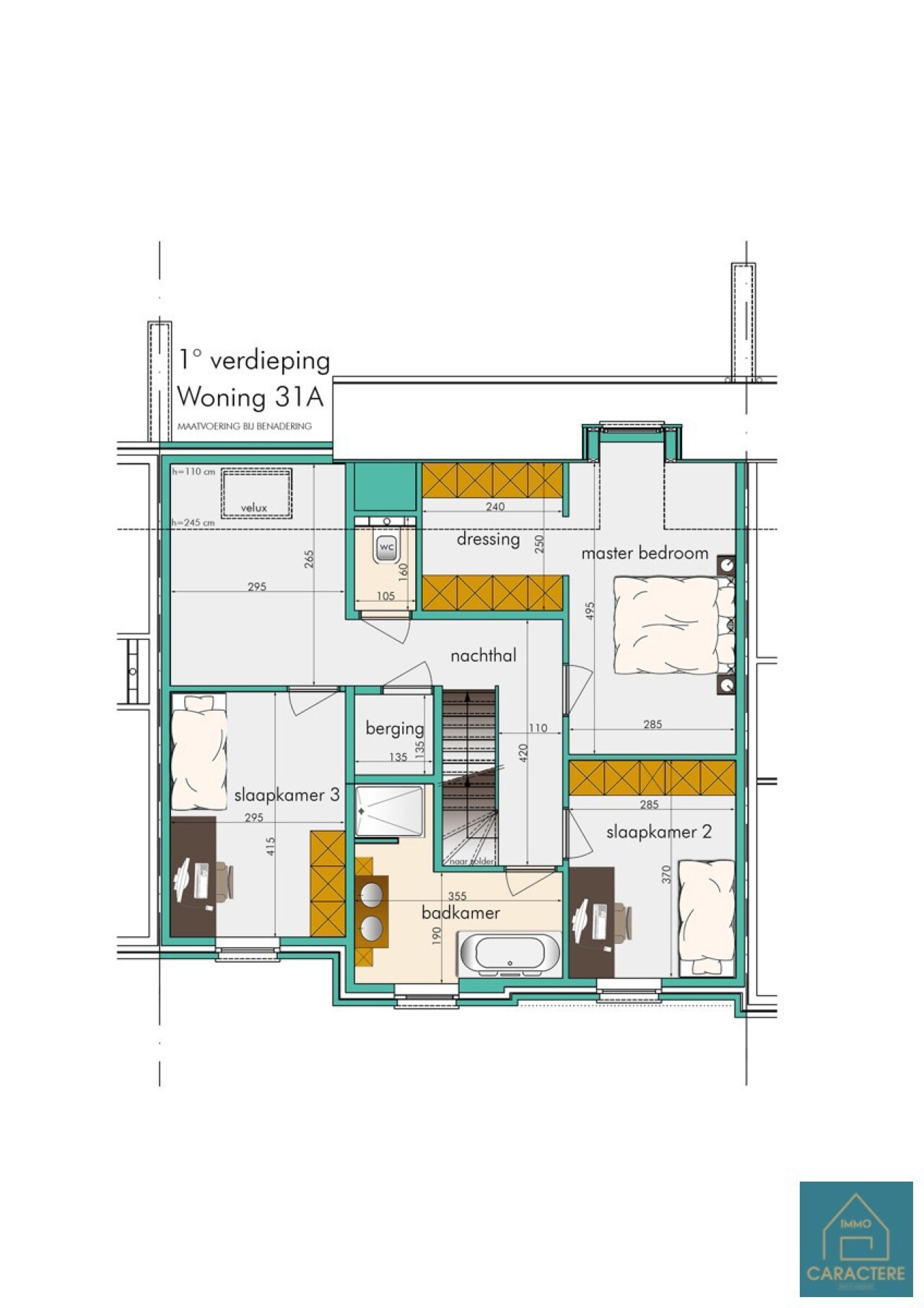
Op de eerste verdieping bevinden zich drie volwaardige slaapkamers, waaronder een master bedroom met dressing.
Daarnaast is er een bureau- of speelruimte, een stijlvolle badkamer met zowel bad als douche en een apart toilet.

Zolder

De ruime zolder van circa 40 m² biedt tal van mogelijkheden en kan volledig naar wens worden ingericht als extra slaapkamer of hobbyruimte.

Deze energiezuinige woning is uitgerust met een warmtepomp, vloerverwarming en zonnepanelen en behaalt een uitzonderlijk gunstig E-peil van E7.
Dit resulteert in een vermindering van 50% op de onroerende voorheffing gedurende de eerste vijf jaar.

Extra troeven:
- Geïnstalleerde keuken
- Volledig geschilderd
- Armaturen inclusief

Ontdek deze woning van dichtbij en maak een afspraak voor een bezichtiging.
Contacteer me: 0465.03.30.54 of info@immocaractere.be

*Prijs inclusief btw en registratierechten: €497.330,-
*Prijs exclusief notariskosten - aansluitingskosten - dossierkosten - landmeter.


Uw contact

Vragen over deze eigendom ref: 7552905
contact

Details van het pand

Financieel

Prijs
€ 416.000,00
Beschikbaarheid
Af te spreken met eigenaar

Ligging

Buurt
Residentiële wijk

Gebouw

Bewoonbare oppervlakte
220,00 m²
Aantal gevels
2
Bouwjaar
2022
Staat
Nieuw

Terrein

Grondoppervlakte
271,00 m²
Tuin
Ja

Parkeermogelijkheden

Garage
1
Parkings binnen
1

Indeling

Keuken
Volledig geïnstalleerd
Bureau
Ja
Slaapkamer 1
20,00 m²
Slaapkamer 2
12,00 m²
Slaapkamer 3
11,00 m²
Badkamer type
Douche en ligbad
Toiletten
2
Wasplaats
Ja
Geventileerde ruimte
Ja
Zolder
Ja

Comfort

Handicapvriendelijk
Nee

Energie

EPC
10 kWh/m²/jaar
EPC unieke code
2019155657
Dubbele beglazing
Ja
Elektriciteitskeuring
Ja, conform

Technieken

Elektriciteit
Ja
Kabeltelevisie
Ja
Riolering
Ja

Stedenbouw

Bestemming
Woonuitbreidingsgebied
Bouwvergunning
Ja
Verkavelingsvergunning
Ja
Voorkooprecht
Nee
Dagvaarding
Nee
G-score
A
P-score
A
Watergevoelig openruimtegebied
Nee
Vonnissen
Nee
Servitude
Nee

Meer info over deze eigendom

Bedankt voor je bericht, we contacteren je zo spoedig mogelijk.
Er was een probleem bij het versturen van het formulier, gelieve opnieuw te proberen.
(*) Gelieve de verplichte velden in te vullen.